輕型板式給料機
周先生 13906278080 丁寶勤 13906276368
電話:0513-88400999 傳真:0513-88400998 郵箱:jszk@vip.163.com

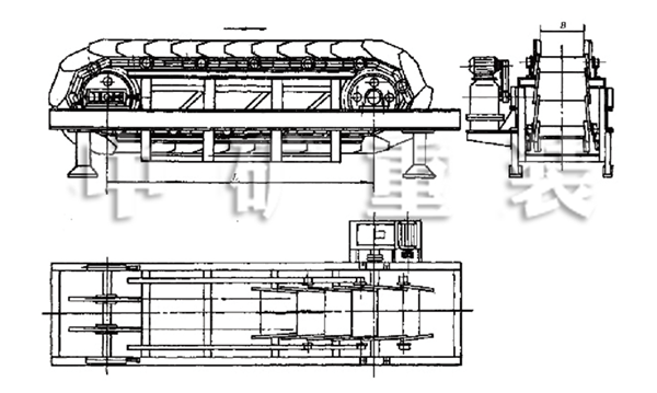
產品簡介
BQ型板式給料機(簡稱板喂機)系連續給料機械,適用于短距離輸送給料粒度160mm以下的塊狀物料。在礦山、選場、化工、水泥、建材等部門,廣泛用于從儲料倉往破碎、運輸等機械作為均勻連續給料。
輕型板式給料機可水平安裝,也可傾斜安裝。一般適應松散密度小于1200kg/m3、塊重小于140kg、溫度350攝氏度以下的物料。

產品特點
主傳動的結構采用可靠的軸承,改善了機器的受力情況。
傳動連接采用齒輪連接,提高了機器傳動的穩定性,使用壽命可延長1倍
尾部采用螺旋拉緊,通過拉緊傳動鏈條保證足夠傳動力;尾部鏈輪兩端配有滑塊,可自動調整保證兩端鏈輪受力均勻。
形式、基本參數與尺寸


注意事項
1、鏈輪中心距的允許偏差≤一個鏈節距
2、給料機的給料速度按下列系列選取,其偏差不得超過±10%
0.030; 0.040 ; 0.050; 0.063; 0.080; 0.100; 0.125; 0.160; 0.200; 0.250;
0.315; 0.400m/so
給料機在給料速度需要調節時,采用調速電機。一般采用Y系列異步電動機。
3、輸送槽側擋板的高度系列為:125; 160; 200 ; 250 ; 315; 400mm
4、牽引鏈采用套筒滾子輸送鏈,節距系列為:160; 200 ; 250 ; 315; 400mm
5、鏈輪采用套筒滾子輸送鏈鏈輪的設計規則,齒數從以下數目中選取:6; 8; 9; 12.
6、給料機的傳動方式分為右傳動和左傳動兩種,傳動裝置在物料運行方向的右側為右傳動,反之為左傳動。分別用Ⅰ和Ⅱ標示。
7、型號標記

標記示例:輸送槽寬度B為1000mm,形式為C型,鏈輪中心距L為9m,右傳動方式的通用固定式輕型板式給料機標記為:板式給料機 BQC1000-9 I JB/T3813—1999












